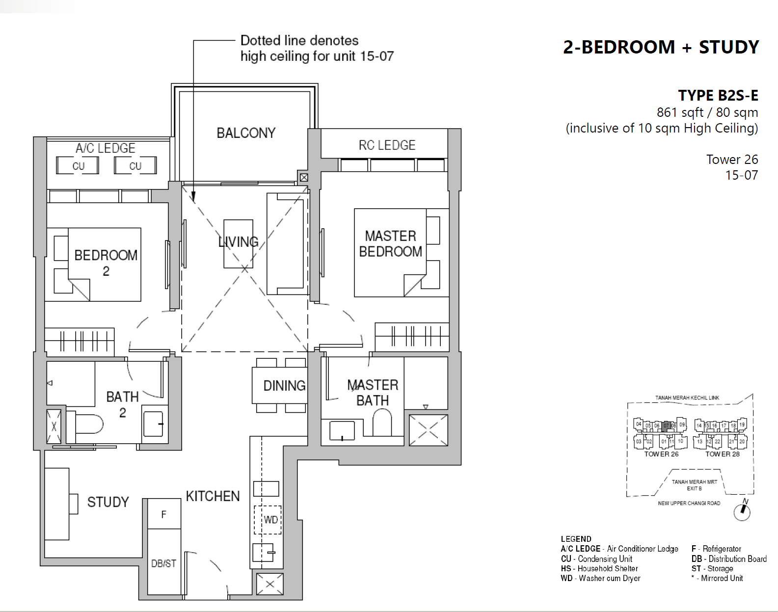
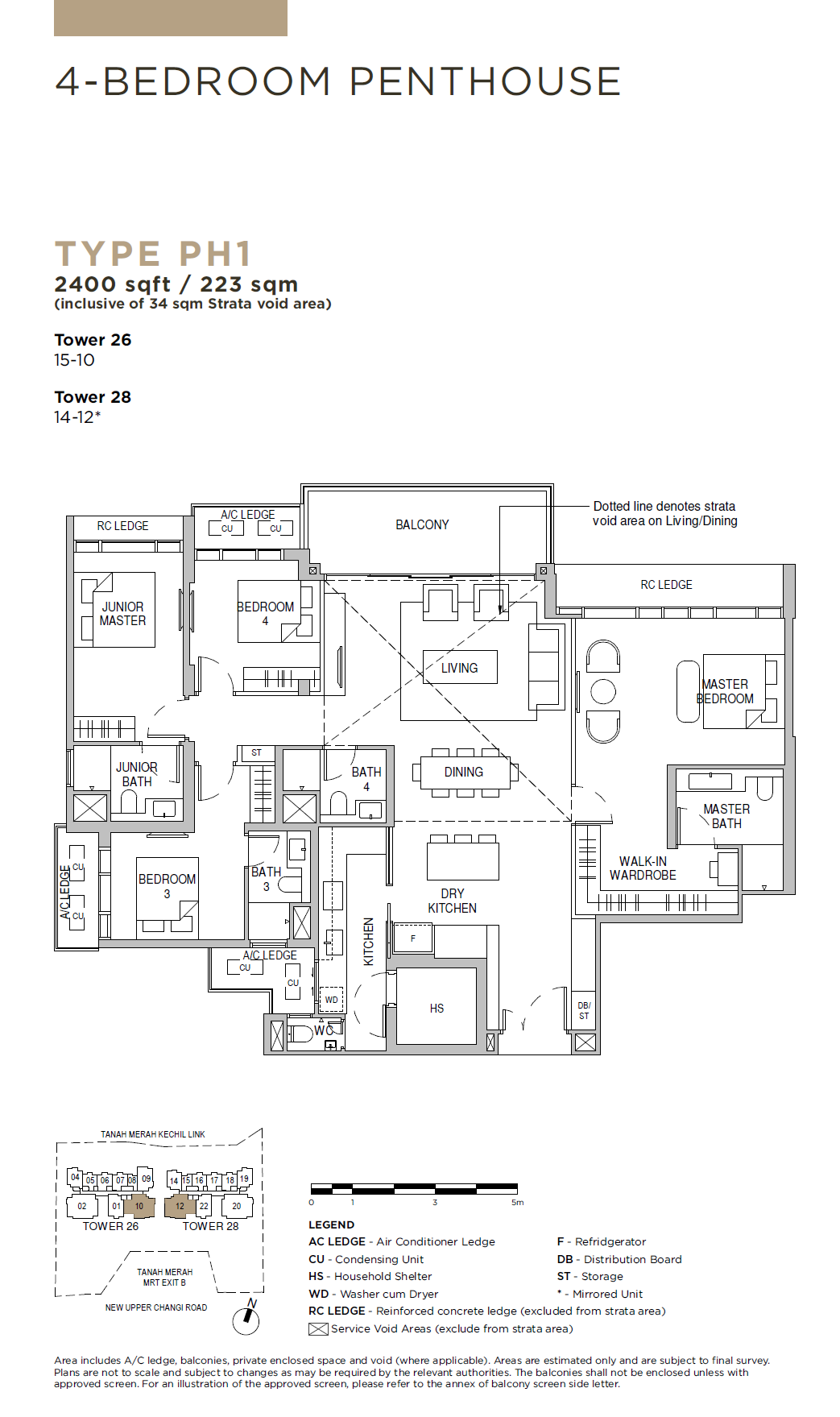
Site Plans / Floor Plans
Sceneca Residence
Address
26 Tanah Merah Kechil Link
Location
D16 - Bedok / Upper East Coast
Book an appointment
We will get back to you ASAP.

